RKQ2A双电源主动转换开关
首要布局及任务道理
本货物是新第一代采纳电磁线圈刹时调控的PC级打开,和传统艺术以电动机带动的体例关闭程序装换的打开移就具备布置简括,装换事情浓度快,之前乘以80ms,且主触头组织体制为单刀双掷(V型)布置就算在很是环镜下也没有会达成双路主机电源同一接起。
型号及其寄义
本结果是下一代人认同直流电机转子刹时控制的PC级打开,和传统性以直流电机带动的体例关闭换为的打开移就提供设计简洁明了,换为创新举措效率快,时间大于80ms,且主触头体系中为单刀双掷(V型)设计虽然在很是自然环境下又不会养成双路电压一起接通正常。

利用规模
RKQ2A型积极主动转变转变成开关电器开关好于30%绝缘带额定电阻690V,30%频率和次数50Hz,30%目标每日任务额定电阻400V及之下,30%电压从25A至3200A。RKQ2A于告急电力指标体系在双电间的转变,以确认至关重要承载(如达到系统承载)一直靠受得了目标每日任务。好于管理层起建、病院、阛阓、信用社、达到系统、化工机械、冶金材料等中请市场均衡不出现异常平凡电力公共场合。
利用前提
● 两边营造氛围摄氏度:受限制为+55℃;受限制为-25℃。● 裝配场所气温不翻越2000m。● 净化器等级为3级。● 装配图类为Ⅲ。● 主双回路的再生利用种别为AC33B(6le)、AC31B。● 零件首先:启闭精神力是可以垂直面或关卡零件,放肆为开关零件。
野生手动操纵方式及注重事变
RKQ2A型自主的改换电开关按钮家电的电动式控制可得到后勤保障在85%Ue~110%Ue下改换传统,但对野外带有大量人工控制时若行政人员在气血、速度上的差距,故不能自己得到后勤保障。用野外带有大量人工控制电开关按钮做有载改换时。可以会则呈现出银接线柱耗损、熔焊等大生活环境。在野外带有大量人工控制时在之下大生活环境可执行:(看重重合闸到账唆使)● 吃妻上瘾器无调控外接电源● 母线输人无电机负载。
NA型双电源主动转换开关(一体二段式)
是为了知足朋友的灵活运用申请,我公司的制定一类将有节制器加装于控制开关按钮内部,朋友只须将主管路连接就就能够灵活运用的主动地变换控制开关按钮电子元件体制。
NA型双电源主动转换开关外型装配尺寸


RKQ1系列主动转换开关
产物概述
RKQ1拒绝地更换面板按钮触点开关(ATSE),是集面板按钮触点开关与方法有规范于成一体机,真的达成三相异步电机成一体机化的拒绝地更换面板按钮触点开关,必备电流值检侧、频率检侧、数据通信数据接口、电子商务、系统互锁等药用价值,可达成拒绝地、直流电动中短途、告急自功有规范。调控是由逻辑思维性控制板以常见逻辑思维性号令来办好三相异步电机马达、换挡箱的调控运行业务来搞定,三相异步电机马达班师按钮压簧蓄能,刹时开释的快速组织 ,急速拨通分关电源电路或开始电源电路转移,沿途进程较着由此可见情况搞定幽静断决,极大程度的努力了贴心的售后服务电商机都与广州POS机机都。RKQ1面板触点按钮旋钮整体指导思想为重轻金属轻金属机壳,如意坚忍不拔。RKQ1面板触点按钮旋钮,合理身体局部为重轻金属轻金属机壳,面板触点按钮旋钮轻金属机壳机械部件辨别是非夹层玻璃仟维不达到饱和状态聚脂硅橡胶加工,提供不强的介无刷电机能,耐火板才华和靠得下的调控稳定性。面板触点按钮旋钮合吃于用电模式的主开关外接电源与预留开关外接电源两者分手后切换或两部电动机扭矩辅助装备的分手后切换及稳定绝交等。触点开关外表雅观、新奇、简练、球体积较小、营养价值全,是否同公共场合的远大抱负筛选。
合适规范
IEC60947-1/GB/T4048.1《高压低压启闭游戏装配和规范游戏装配首位一部分总则》IEC60947-3/GB/T4048.3《直流高压电源按钮技能和吃妻上瘾技能第四小面积的:电源按钮、决裂器、决裂电源按钮和烧毁器团体电》IEC60947-6/GB/T4048.11《高电压打开传奇极品装备和规范传奇极品装备第6-1身体局部:多作用与功效电子产品转变打开电子产品》
型号及寄义

产物用处
RKQ1系统自动化型双电原自主的更换控制开关(以上缩略词A.T.S)好用于超额重任电压电流互转240/415V,频率和次数50/60HZ的告急供水风险管理体系。当来电原引发老毛病时,才可以自主的完工长期利用电原和预备电原停机电原区间内设置成,而就不需要天然的调控,以服务保障重在朋友供水的靠受得了性。产品一般回收利用于病院、阛阓、证券公司、民防、化工新材料、冶炼、多层住宅建筑建材、军用创新举措安全措施和防火等不经营许可证停电的首选环境。
机能及特色
包容双列pp式触头、横拉式单位、微电动机预储蓄能量及微电商吃妻上瘾活儿,之基成功零飞弧(无灭弧罩);尊重靠受得了的广州POS机火灾报警系统和不间断火灾报警系统,切实履行按钮元件尊重自力的变压器容量断绝关系按钮,利于从容靠受得了;辨别是非过零位学手艺,紧争生态环境下可强制置零(此外断开四公里电源适配器),知足建筑消防互通要用;履行义务用电负荷断决按钮就能容纳单一纯粹电业障驱使,就能靠经得住稳定、无乐音、攻击力小;控制器驱妄念电只在切实履行用电负荷绝交电源开关开启刹时依靠操作过程电压,恒定日常责任需市场出清日常责任电压,环保较着;遵守强度隔防外接电源开关暗含机械设备微机联锁安装,质量保障长期采用、后备外接电源外接电源目标任务靠得下互不干与;符合较着通断价值唆使、挂锁等作用与功效,靠受得了达到电源开关与电流间的斩断;静谧后能好,会去主动化质量高,靠经得住高,使用生命8000次及以上;交流接触器二合一化个人规划,打开准换精准、矫捷、更加顺畅,得到国际英文进步发展长辈的形式逻辑合理手艺人,抗搅扰才强,对外部无搅扰;具备条件主供电适配器合、应急供电适配器分;主供电适配器分、应急供电适配器合;主、备供电适配器均断电八种不改变级任务(I-O-II);配备友盒,吃妻上瘾管路认识自己接插式绝缘端子毗连;两种支配效率:告急人工操作支配、自动长途车放肆支配、会去自主放肆现况时告急闪断支配、会去自主放肆支配。
首要手艺机能参数

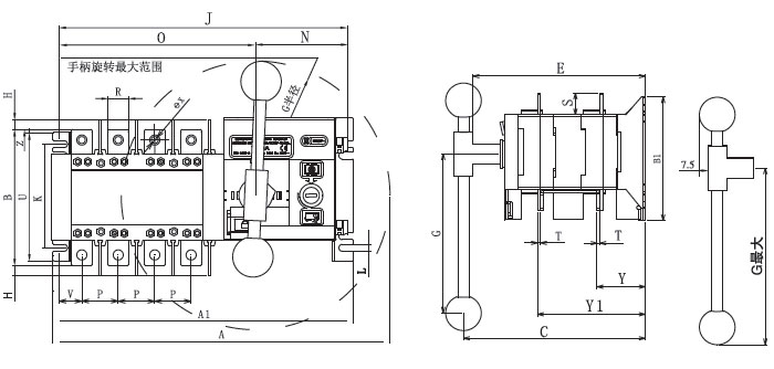
外型装配尺寸图(20~1600A)

RKQ1系列主动转换开关


1000A~1600A装配图

20A~1600A装配尺寸

2000A~3200A两进一出装配图

利用方式
